Silfratjörn í Reykjavík

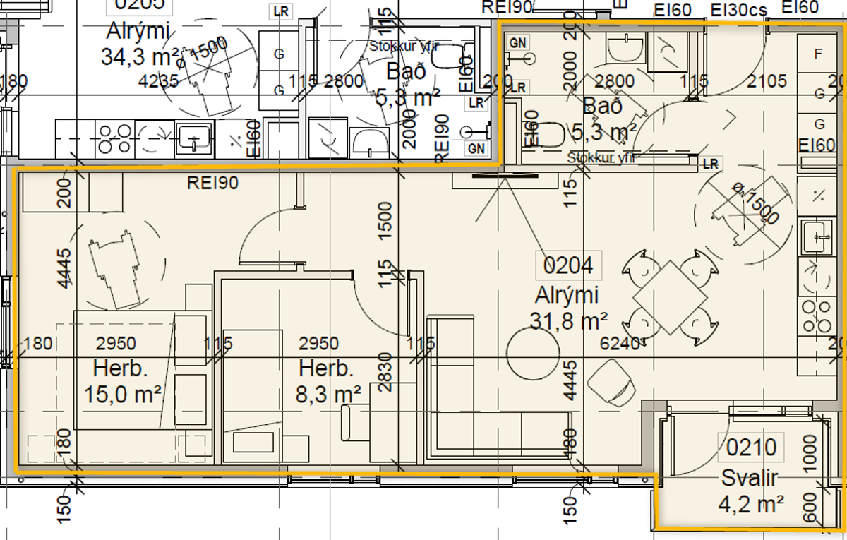
3ja herbergja íbúð laus til leigu í Gæfutjörn 22 (nr. 204)

Upphaf leigu er 15. júlí 2026.

Íbúðin er 70,7 m² endaíbúð og er á 2. hæð í lyftuhúsi. Svalir í suður.

Íbúðin skiptist í anddyri/gang, tvö svefnherbergi, baðherbergi og alrými með eldhúsi. Geymsluskápur er innan íbúðar og fataskápur í hjónaherbergi. Sameignileg vagna- og hjólageymsla er á jarðhæð.

Gæludýr er ekki heimilað í íbúðinni.

Áætlað leiguverð er kr. 235.656 á mánuði, tengt vísitölu neysluverðs mánaðarlega, með grunn í desember 2025. Leigutakar eiga almennt rétt á húsnæðisbótum og í einhverjum tilfellum sérstökum húsnæðisstuðningi til að koma til móts við leigugjaldið. 

Hlutfall íbúðar í sameiginlegum kostnaði er kr. 13.892 á mánuði.

Hér má sjá myndband tekið úr sambærilegri í Gæfutjörn 22 (nr. 404, 70,7 m²)
Hér má sjá 360° myndir teknar úr sambærilegri í Gæfutjörn 22 (nr. 404, 70,7 m²)

Úthlutun hlýtur sá umsækjandi sem hefur lægsta númer á biðlista hjá Bjargi og uppfyllir öll skilyrði um úthlutun; hefur greitt til stéttarfélags innan ASÍ eða BSRB í a.mk. 16 mánuði, litið til sl. 24 mánuði við úthlutun og er innan tekjumarka og eignamarka, þá að skattskyldar tekjur séu ekki hærri en 8.686.000/12.161.000 (einstaklingur/hjón) auk kr. 2.172.000 fyrir hvert barn eða ungmenni að 20 ára aldri sem býr á heimilinu, skv. síðasta skattaframtali. Heildareign heimilis má ekki vera hærri en 9.386.000 kr.

Til að koma til greina fyrir úthlutun þarf að haka við staðsetningu og íbúð á "mínum síðum" á heimasíðu Bjargs fyrir 10. desember 2025.

Færa mig á umsóknarsíðu

Stúdíó íbúðir

  • Fjöldi svefnherbergja: 0
  • Stærð íbúða: 42,4m² - 45,2m²
  • Fjöldi íbúða: 3

Stúdíóíbúðirnar í Silfratjörn eru 42,8 - 43,5 m² og skiptist þær í alrými með eldhúsi, svefnrými og baðherbergi. Geymslurými er í skápum innan íbúðar og í íbúðinni er fataskápur. 

Myndbönd:

Hér má sjá myndband tekið í Gæfutjörn 20 (nr. 104, 42,8 m²)

Hér má sjá myndband tekið í Silftratjörn 2 (nr. 306, 43,5 m²)

360° myndir:

r má sjá 360° myndir teknar í Gæfutjörn 20 (nr. 104, 43,5 m²)

Hér má sjá 360° myndir teknar í Silfratjörn 2 (nr. 306, 42,8 m²)

1-2ja herbergja íbúðir

  • Fjöldi svefnherbergja: 1
  • Stærð íbúða: 42,4 - 45,2 m²
  • Fjöldi íbúða: 20

1-2ja herbergja íbúðirnar í Silfratjörn eru 42,4 - 45,2 m² og skiptast þær í alrými með eldhúsi, svefnrými (stúkað af með rennihurð) og baðherbergi. Geymslurými er í skápum innan íbúðar og í íbúðinni er fataskápur. 

Myndbönd:

Hér má sjá myndband tekið í Skyggnisbraut (nr. 102, 45,5 m²)

Hér má sjá myndband tekið í Skyggnisbraut (nr. 203, 45,5 m²)

360° myndir:

Hér má sjá 360° myndir teknar í Skyggnisbraut 25 (nr. 202, 45,5 m²) 

Hér má sjá 360° myndir teknar í Skyggnisbraut 25 (nr. 203, 45,5 m²)


Hér má sjá fleiri myndir og myndbönd úr 1-2ja herbergja íbúðum Bjargs við Silfratjörn.

2ja herbergja íbúðir

  • Fjöldi svefnherbergja: 1
  • Stærð íbúða: 45,4 m²- 47,2 m²
  • Fjöldi íbúða: 6

Tveggja herbergja íbúðirnar við Silfratjörn eru 45,4 - 47,2 m². Í þeim er eitt herbergi, eldhúskrókur og baðherbergi. Geymslurými er í skápum innan íbúðar og í íbúðinni er fataskápur. 

Myndbönd:

Hér má sjá myndband tekið í Skyggnisbraut 27 (nr. 405, 45,4 m²).

Hér má sjá myndband tekið í Gæfutjörn 22 (nr. 101, 47,2 m²).

360° myndir:

Hér má sjá 360° myndir teknar í Skyggnisbraut 27 (nr. 405, 45,4 m²).

Hér má sjá 360° myndir teknar í Gæfutjörn 22 (nr. 101, 47,2 m²).

3ja herbergja íbúðir

  • Fjöldi svefnherbergja: 2
  • Stærð íbúða: 59,4 - 72,3 m²
  • Fjöldi íbúða: 19

Þriggja herbergja íbúðirnar við Silfratjörn eru frá 59,4 - 72,3 m², tvö svefnherbergi, stofa, eldhús og baðherbergi. Geymslurými er í skápum innan íbúðar og í hjónaherbergi er fataskápur. 

Myndbönd:

Hér má sjá myndband tekið í Skyggnisbraut 25 (nr. 204, 60,0 m²)

Hér má sjá myndband tekið í Gæfutjörn 20 (nr. 301, 70,4 m²).

360° myndir:

Hér má sjá 360° myndir teknar í Skyggnisbraut 25 (nr. 204, 60,0 m²)

Hér má sjá 360° myndir teknar í Gæfutjörn 20 (nr. 301, 70,4 m²).


Hér má sjá fleiri myndir og myndbönd úr 3ja herbergja íbúðum Bjargs við Silfratjörn.

4ra herbergja íbúðir

  • Fjöldi svefnherbergja: 3
  • Stærð íbúða: 80,8m² - 84,1 m²
  • Fjöldi íbúða: 14

Fjögurra herbergja íbúðirnar eru 80,8 - 84,1 m². Um er að ræða þrjú svefnherbergi, eldhús og baðherbergi. Geymslurými er í skápum innan íbúðar og í hjónaherbergi er fataskápur. 

Myndbönd:

Hér má sjá myndband tekið í Skyggnisbraut 25 (nr. 201, 82,4 m²)

Hér má sjá myndband tekið í Gæfutjörn 20 (nr. 204, 80,8 m²).

360° myndir:

Hér má sjá 360° myndir teknar í Skyggnisbraut 25 (nr. 201, 82,4 m²)

Hér má sjá 360° myndir teknar í Gæfutjörn 20 (nr. 204, 80,8 m²).


Hér má sjá fleiri myndir og myndbönd úr 4ra herbergja íbúðum Bjargs við Silfratjörn.

5 herbergja íbúðir

  • Fjöldi svefnherbergja: 4
  • Stærð íbúða: 96,3m² og 97,9m²
  • Fjöldi íbúða: 3

Fimm herbergja íbúðirnar eru 96,3 og 97,9m². Um er að ræða fjögur svefnherbergi, eldhús og baðherbergi. Geymslurými er í skápum innan íbúðar og í hjónaherbergi er fataskápur.

Hér má sjá myndband tekið í Silfratjörn 2 (nr. 305, 96,3 m²).

Hér má sjá 360° myndir teknar í Silfratjörn 2 (nr. 305, 96,3 m²).

Skipulag

Teikningar eru settar inn með fyrirvara um breytingar sem kunna að hafa átt sér stað á framkvæmdatíma.