30 íbúðir í sex húsum.
Úthlutun er hafin vegna íbúða í Trölladal 1. Opið er fyrir umsóknir vegna íbúða í Trölladal 3-11.
Sjá frekari upplýsingar um úthlutun hér.
Íbúðirnar verða tveggja til fimm herbergja og eru í sex, tveggja hæða húsum. Fyrsta skóflustunga var tekin í maí 2025 og er áætlað að fyrstu íbúðir verði tilbúnar í júlí 2026.
Gæludýrahald verður leyft í íbúðum á jarðhæð. Sjá nánar hér um reglur Bjargs um gæludýrahald.
Verktaki: HH smíði ehf.
Hér má sjá Trölladal á korti.
Tveggja herbergja íbúðirnar eru 50,5 og 55,2 m² og skiptast þær í anddyri, eitt svefnherbergi, baðherbergi og alrými með eldhúsi. Geymslurými er á jarðhæð í sameign og fataskápur í svefnherbergi. Afgirtur sérafnotareitur á jarðhæðum og svalir í íbúðum á efri hæð.
Teikningar eru settar inn með fyrirvara um breytingar sem kunna að eiga sér stað á byggingartíma.
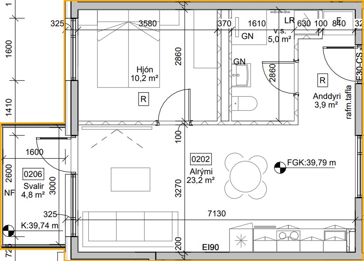
Þriggja herbergja íbúðirnar eru 75,7 og 76,6 m². Í þeim er anddyri, tvö svefnherbergi, baðherbergi og alrými með eldhúsi. Geymslurými er á jarðhæð í sameign og fataskápur í hjónaherbergi. Afgirtur sérafnotareitur á jarðhæðum og svalir í íbúðum á efri hæð.
Teikningar eru settar inn með fyrirvara um breytingar sem kunna að eiga sér stað á byggingartíma.
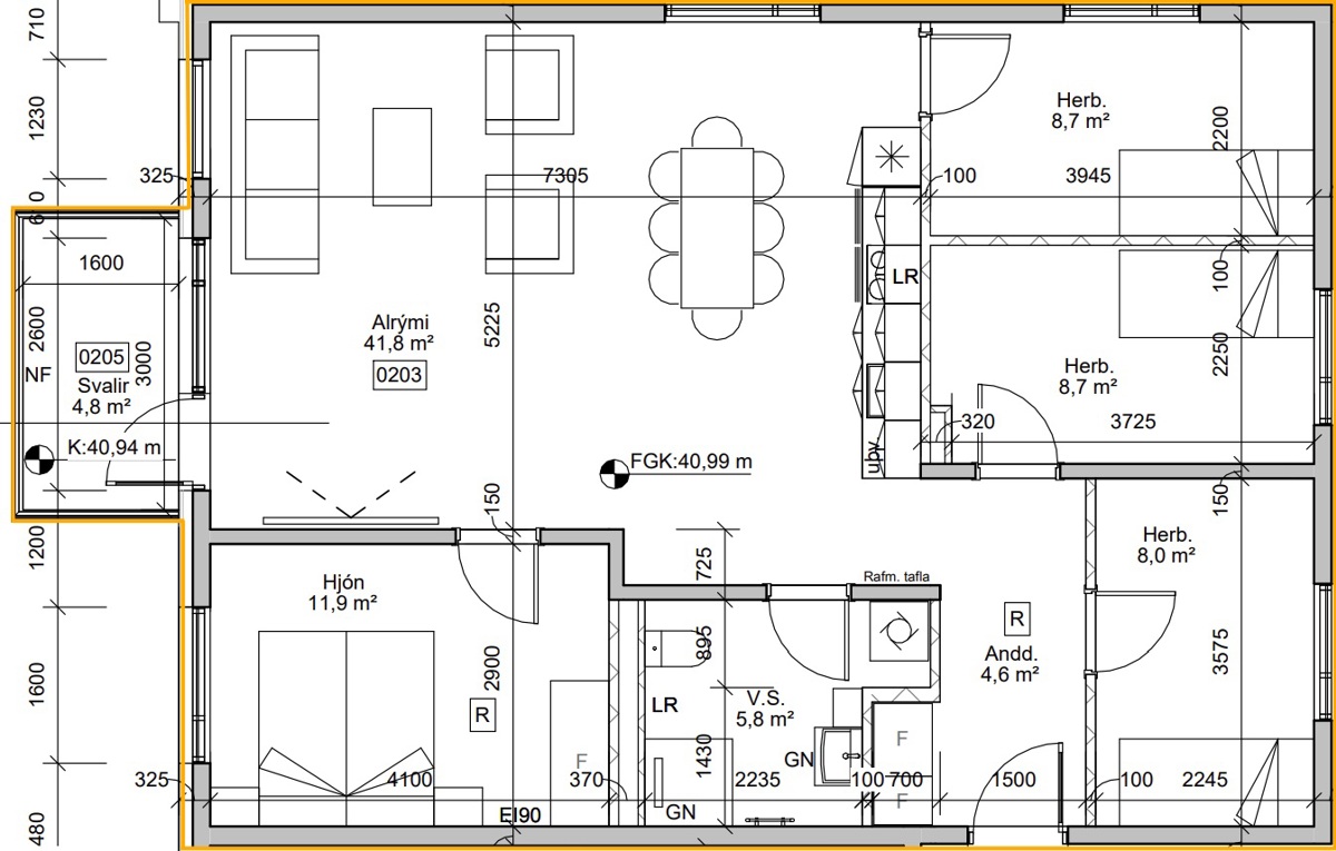
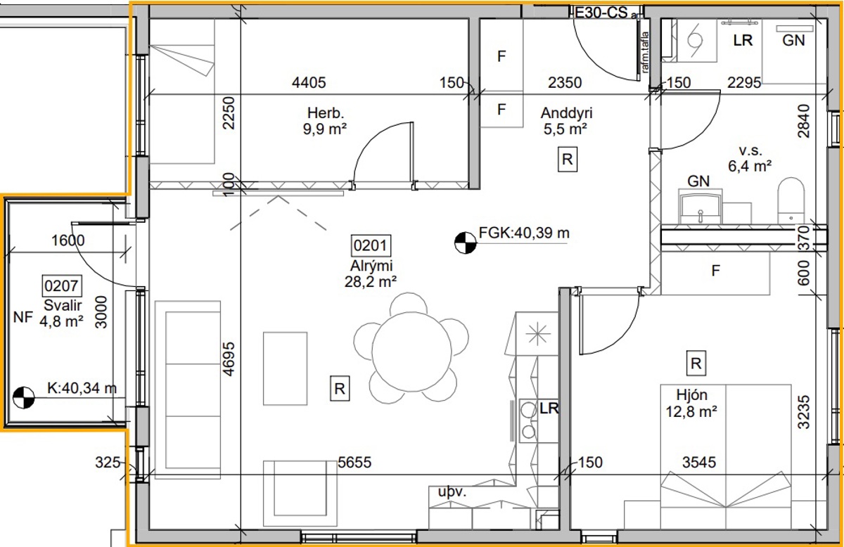
Fjögurra herbergja íbúðirnar eru 91,0 m². Í þeim er anddyri, þrjú svefnherbergi, baðherbergi og alrými með eldhúsi. Geymslurými er á jarðhæð í sameign og fataskápur í svefnherbergi. Afgirtur sérafnotareitur á jarðhæðum og svalir í íbúðum á efri hæð.
Teikningar eru settar inn með fyrirvara um breytingar sem kunna að eiga sér stað á byggingartíma.
Fimm herbergja íbúðirnar eru 105,4 m². Í þeim er anddyri, fjögur svefnherbergi, baðherbergi og alrými með eldhúsi. Geymslurými er á jarðhæð í sameign og fataskápur í svefnherbergi. Afgirtur sérafnotareitur á jarðhæðum og svalir í íbúðum á efri hæð.
Teikningar eru settar inn með fyrirvara um breytingar sem kunna að eiga sér stað á byggingartíma.
Athugið, 3D myndirnar eru settar inn með fyrirvara. Þær eru ætlaðar til að gefa hugmynd af útliti og skipulagi. Endanlegt útlit, efnisval, litir og frágangur getur tekið breytingum á byggingartíma.
Stutt í ýmsa þjónustu sem og tenginga við stofnbrautir, skóla og leikskóla.
Ýmsir staðir á netinu þar sem hægt er að sækja gagnlegar upplýsingar.
Sendu okkur tölvupóst