
Hraunbær 153-163 í Reykjavík
99 íbúðir við Hraunbæ 153-163 í Árbæ (Reykjavík).
Íbúðirnar eru í fjórum húsum sem eru tvær til fimm hæðir. Gæludýrahald er heimilt í hluta íbúða á jarðhæðum. Sjá nánar hér um reglur Bjargs um gæludýrahald.
Félagsbústaðir eiga og leigja út 20% íbúða í húsunum á móti Bjargi íbúðafélagi.
Hér má sjá Hraunbæ 153-163 á korti.
Hér má sjá myndir og myndbönd úr öllum íbúðartýpum í Hraunbæ 153-163.
Stúdíóíbúð
- Fjöldi svefnherbergja: 0
- Stærð íbúða: 33,2 m²
- Fjöldi íbúða: 1
1-2ja herbergja íbúðir
- Fjöldi svefnherbergja: 1
- Stærð íbúða: 43,2 m²
- Fjöldi íbúða: 3
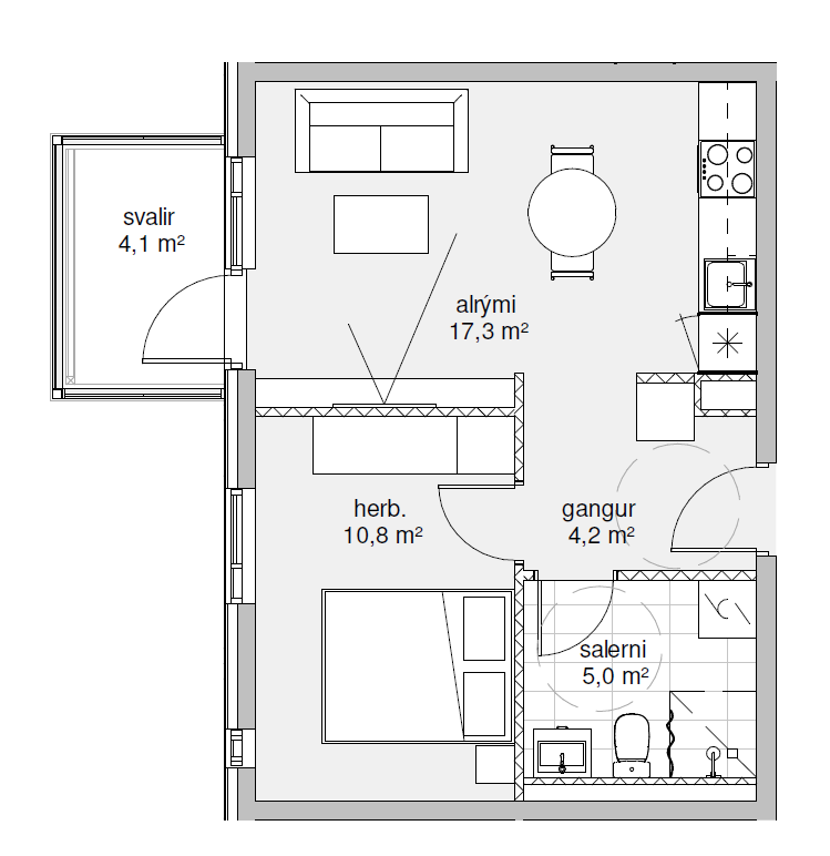
2ja herbergja íbúðir
- Fjöldi svefnherbergja: 1
- Stærð íbúða: 43,3-49,6 m²
- Fjöldi íbúða: 25
Tveggja herbergja íbúðirnar eru frá 43,3-49,6 m². Íbúðirnar skiptast í alrými með eldhúsi, svefnherbergi og baðherbergi. Geymslurými er í skápum innan íbúðar og í íbúðinni er fataskápur.
Myndbönd:
Hér má sjá myndband tekið í Hraunbæ 153 (Hraunbæ 153/155, 43,5 m²)
Hér má sjá myndband tekið í Hraunbæ 155 (Hraunbæ 153/155, 47,1 m²)
360° myndir:
Hér má sjá 360° myndir teknar í Hraunbæ 153 (nr. 203, 43,5 m²)
Hér má sjá 360° myndir teknar í Hraunbæ 155 (nr. 205, 44,7 m²)
Hér má sjá myndir og myndbönd úr öllum íbúðartýpum í Hraunbæ 153-163.
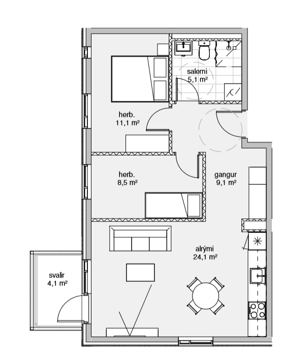
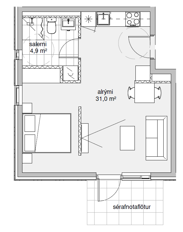
3ja herbergja íbúðir
- Fjöldi svefnherbergja: 2
- Stærð íbúða: 59-70,6 m²
- Fjöldi íbúða: 29
Þriggja herbergja íbúðirnar eru frá 59 - 70,6 m². Íbúðirnar skiptast í tvö svefnherbergi, stofu, eldhús og baðherbergi. Geymslurými er í skápum innan íbúðar og í hjónaherbergi er fataskápur.
Myndbönd:
Hér má sjá myndband tekið í Hraunbæ 153 (týpa A í Hraunbæ 153/155, 67,7 m²)
Hér má sjá myndband tekið í Hraunbæ 155 (týpa B í Hraunbæ 153/155, 59,0 m²)
360° myndir:
Hér má sjá 360° myndir teknar í Hraunbæ 153 (nr. 302, 67,7 m²)
Hér má sjá 360° myndir teknar í Hraunbæ 155 (nr. 102, 59,0 m²)
Hér má sjá myndir og myndbönd úr öllum íbúðartýpum í Hraunbæ 153-163.
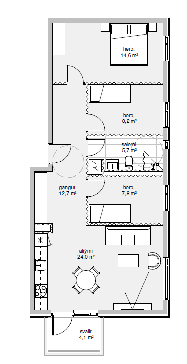
4ra herbergja íbúðir
- Fjöldi svefnherbergja: 3
- Stærð íbúða: 83,7-85,3 m²
- Fjöldi íbúða: 19
Fjögurra herbergja íbúðirnar í Hraunbænum eru 83,7 - 85,3 m², um er að ræða þrjú svefnherbergi, stofa, eldhús og baðherbergi. Geymslurými er í skápum innan íbúðar og í hjónaherbergi er fataskápur.
Myndbönd:
Hér má sjá myndband tekið í Hraunbæ 153 (týpa B í Hraunbæ 153/155, 85,0 m²)
Hér má sjá myndband tekið í Hraunbæ 159 (týpa A í Hraunbæ 157/159, 83,7 m²)
360° myndir:
Hér má sjá 360° myndir teknar í Hraunbæ 153 (týpa B í Hraunbæ 153/155, 85,0 m²)
Hér má sjá 360° myndir teknar í Hraunbæ 153 (týpa A í Hraunbæ 157/159, 83,7 m²)
Hér má sjá myndir og myndbönd úr öllum íbúðartýpum í Hraunbæ 153-163.
5 herbergja íbúðir
- Fjöldi svefnherbergja: 4
- Stærð íbúða: 100,5 - 103,1 m²
- Fjöldi íbúða: 3
Fimm herbergja íbúðirnar í Hraunbænum eru tvær og eru þær 100,5 - 103,1 m². Um er að ræða fjögur svefnherbergi, eldhús og baðherbergi. Geymslurými er í skápum innan íbúðar og í hjónaherbergi er fataskápur.
Myndbönd:
Hér má sjá myndband tekið í Hraunbæ 153 (nr. 101, 103,0 m²).
Hér má sjá myndband tekið í Hraunbæ 157 (nr. 108, 100,5 m²).
360° myndir:
Hér má sjá 360° myndir tekið í Hraunbæ 157 (nr. 108, 100,5 m²).
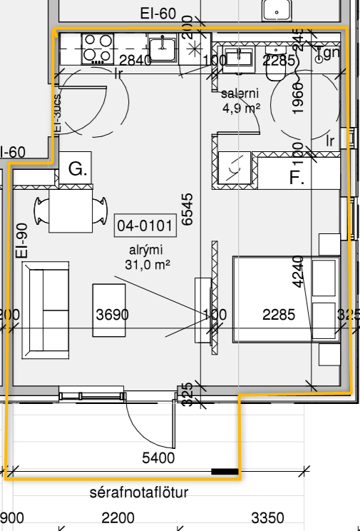
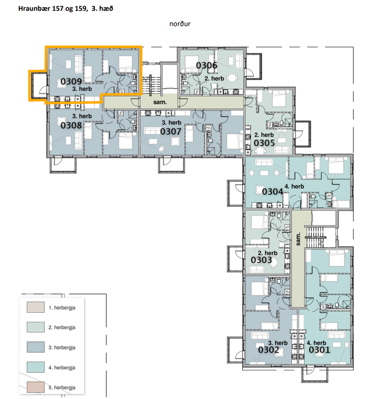
Skipulag
- Aðaluppdrættir_Hraunbær 155
- Aðaluppdrættir_Hraunbær 153
- Aðaluppdrættir_Hraunbær 157 - 159
- Aðaluppdrættir_Hraunbær 161-163
Teikningar eru settar inn með fyrirvara um breytingar sem kunna að hafa átt sér stað á framkvæmdatíma.
Umhverfið
Stutt er eitt stærsta útivistarsvæði höfuðborgarsvæðisins, Elliðarádalinn, þar sem finna má fjölmarga göngu- og hjólastíga. Einnig er stutt er í leikskóla, skóla, verslun og þjónustu.