64 íbúðir við Hraunbæ 133 í Árbæ (Reykjavík).
Hús Bjargs við lóðina að Hraunbæ 133 í Árbæ heita: Bæjarháls 90-96 og Hraunbær 133-141. Íbúðirnar eru að mestu leyti í lyftuhúsum sem eru þrjár til fimm hæðir, nokkrar íbúðanna eru þó í litlu tveggja hæða fjölbýli þar sem íbúðir eru á tveimur hæðum. 2ja - 6 herbergja íbúðir. Hluti íbúðanna er með svalalokun. Gæludýrahald er heimilt í hluta íbúða á jarðhæðum. Sjá nánar hér um reglur Bjargs um gæludýrahald.
Félagsbústaðir eiga og leigja út 20% íbúða í húsunum á móti Bjargi íbúðafélagi.
Hér má sjá Hraunbæ 133 á korti.
Hér má sjá myndir og myndbönd úr öllum íbúðartýpum í Bæjarhálsi 90-96 og Hraunbæ 133-141.
Tveggja herbergja íbúðirnar eru 51,4 - 51,8 m² og skiptast í anddyri, eitt svefnherbergi, baðherbergi og alrými með eldhúsi. Geymslurými er ýmist í skápum innan íbúðar eða geymslurými í sameign. Fataskápur er í svefnherbergi.
Myndbönd:
Hér má sjá myndband tekið í Bæjarhálsi 94 (nr. 502, 51,7 m²)
Hér má sjá myndband tekið í Bæjarhálsi 96 (nr. 301, 58,1 m²)
360° myndir:
Hér má sjá 360° myndir teknar í Bæjarhálsi 94 (nr. 502, 51,7 m²)
Hér má sjá 360° myndir teknar í Bæjarhálsi 96 (nr. 301, 58,1 m²)
Þriggja herbergja íbúðirnar eru 71,5 - 78 m². Í þeim er anddyri, tvö svefnherbergi, baðherbergi og alrými með eldhúsi. Geymslurými er ýmist í skápum innan íbúðar eða geymslurými í sameign. Fataskápur er í hjónaherbergi.
Myndbönd:
Hér má sjá myndband teknar í Bæjarhálsi 94 (nr. 505, 73,4 m²)
Hér má sjá myndband teknar í Bæjarhálsi 96 (nr. 101, 71,5 m²)
360° myndir:
Hér má sjá 360° myndir teknar í Bæjarhálsi 94 (nr. 505, 73,4 m²)
Hér má sjá 360° myndir teknar í Bæjarhálsi 96 (nr. 101, 71,5 m²)
Hér má sjá fleiri myndir og myndbönd úr 3ja herbergja íbúðum úr Hraunbæ og Bæjarhálsi.
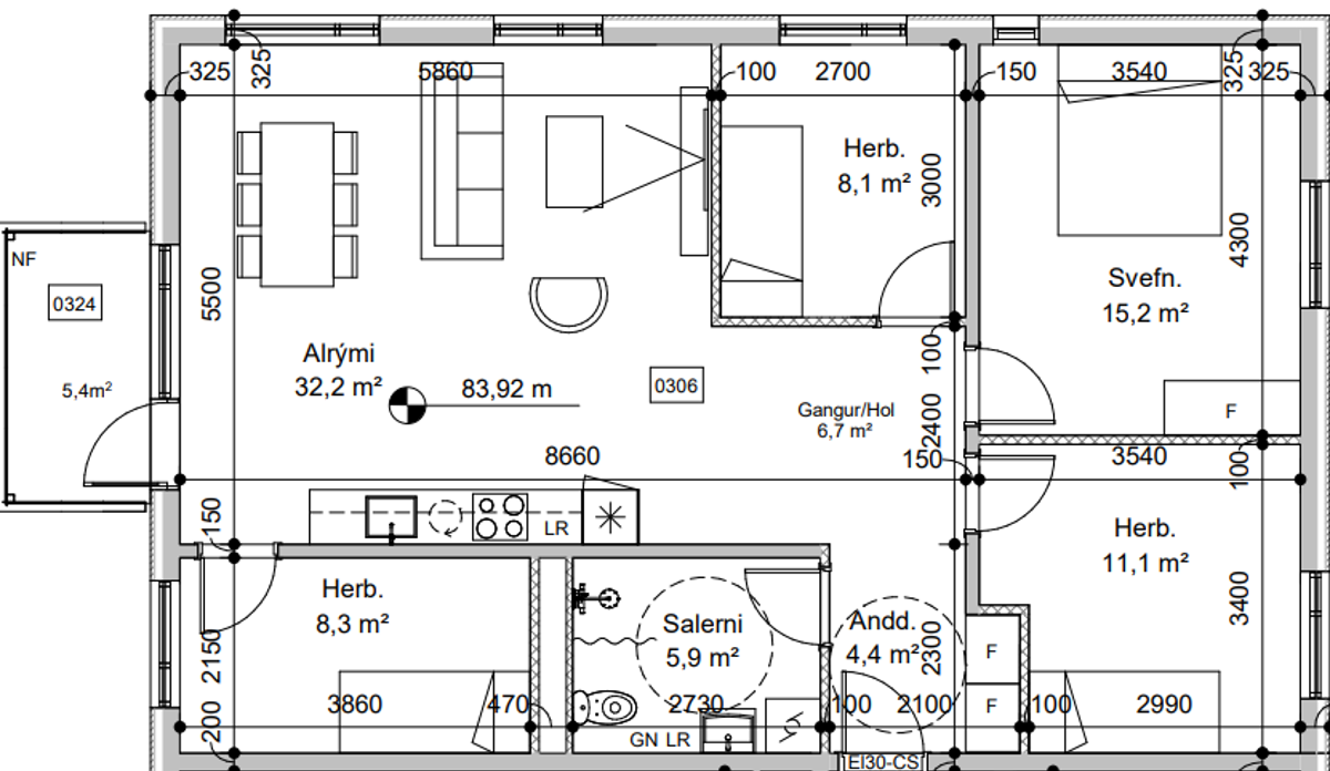
Fjögurra herbergja íbúðirnar eru 87,5 - 92,5 m². Í þeim er anddyri, þrjú svefnherbergi, baðherbergi og alrými með eldhúsi. Geymslurými er ýmist í skápum innan íbúðar eða geymslurými í sameign. Fataskápur er í hjónaherbergi. Íbúðir í matshluta 2 eru á tveimur hæðum.
Myndbönd
Hér má sjá myndband tekið í Bæjarhálsi 94 (nr. 501, 87,5 m²)
Hér má sjá myndband tekið í Bæjarhálsi 96 (nr. 304, 90,8 m²)
360° myndir
Hér má sjá 360° myndir teknar í Bæjarhálsi 94 (nr. 501, 87,5 m²)
Hér má sjá 360° myndir teknar í Bæjarhálsi 96 (nr. 304, 90,8 m²)
Hér má sjá fleiri myndir og myndbönd úr 4ra herbergja íbúðum úr Hraunbæ og Bæjarhálsi.
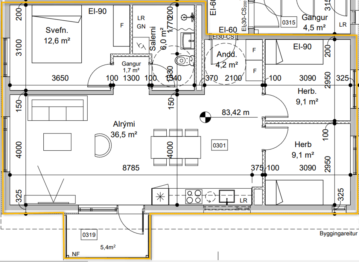
Fimm herbergja íbúðirnar eru 108,5 - 110,5 m². Í þeim er anddyri, fjögur svefnherbergi, baðherbergi og alrými með eldhúsi. Geymslurými er ýmist í skápum innan íbúðar eða geymslurými í sameign. Fataskápur er í hjónaherbergi. Ein íbúðanna er á tveimur hæðum.
Myndbönd:
Hér má sjá myndband tekið í Bæjarhálsi 90 (nr. 206, 109.6 m²)
Hér má sjá myndband tekið í Hraunbæ 141 (nr. 101, 110,5 m²)
360° myndir:
Hér má sjá 360° myndir teknar í Bæjarhálsi 90 (nr. 206, 109.6 m²)
Hér má sjá 360° myndir teknar í Hraunbæ 141 (nr. 101, 110,5 m²)
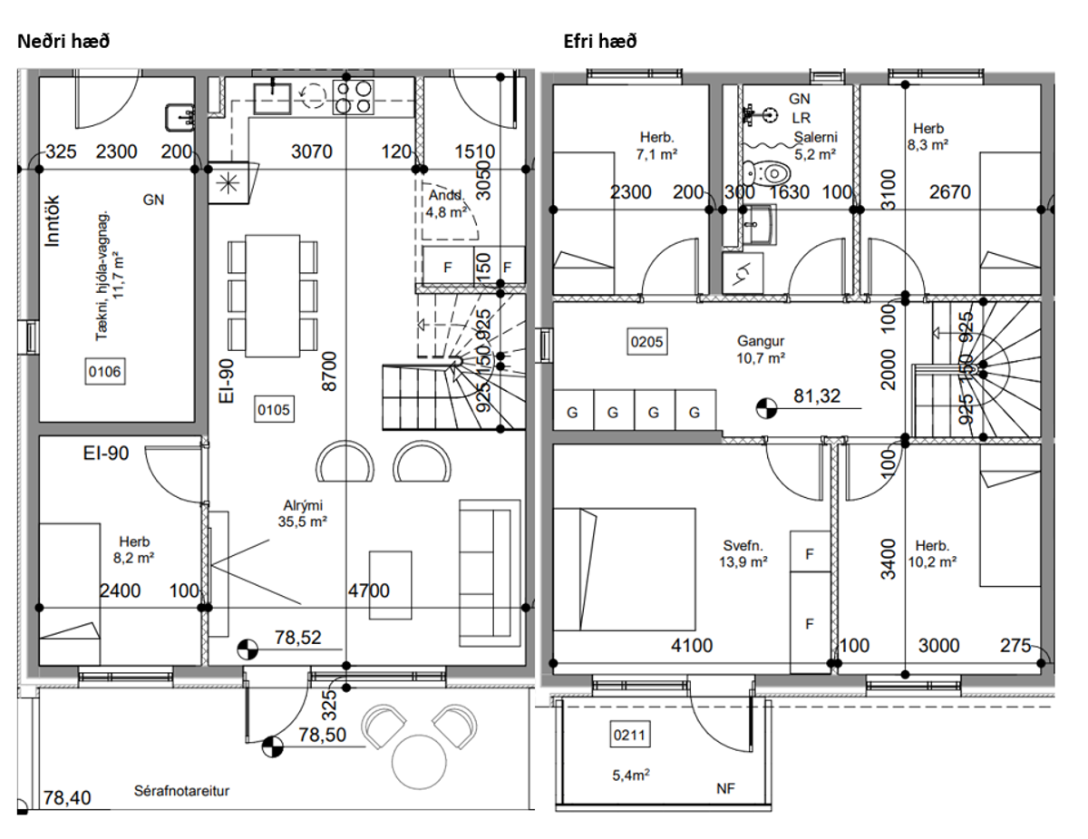
Ein sex herbergja íbúð er í Hraunbæ 133, hún er 124 m². Íbúðin er endaíbúð með sérafnotareitur og svalir í suður. Íbúðin á tveimur hæðum, alrými á jarðhæð og eitt svefnherbergi. Önnur herbergi og salerni á efri hæð. Geymslurými er í skápum innan íbúðar og fataskápur er í hjónaherbergi.
Teikningar eru settar inn með fyrirvara um breytingar sem kunna að hafa átt sér stað á framkvæmdatíma.
Stutt er eitt stærsta útivistarsvæði höfuðborgarsvæðisins, Elliðarádalinn, þar sem finna má fjölmarga göngu- og hjólastíga. Einnig er stutt er í leikskóla, skóla, verslun og þjónustu.
Ýmsir staðir á netinu þar sem hægt er að sækja gagnlegar upplýsingar.
Sendu okkur tölvupóst