
Haukahlíð 18 in Reykjavík - NEW
68 apartments in Haukahlíð 18 (Valsreitur) in Reykjavík.
Construction started in June 2025 and the first apartments are expected to be ready for rent in July 2027. The project is estimated to be fully accomplished in September 2027. See more information about the start of the rent and allocations here.
The house has three entrances and is on three to five floors. The apartments range from one to five bedrooms. Pets are allowed in some of the apartments on the ground floor. See Bjarg's rules on keeping pets.
Félagsbústaðir owns and will rent out part of the apartments in Haukahlíð.
Here you can see Haukahlíð on a map.
One bedroom apartments
- Number of bedrooms: 1
- Size of apartments: 39,4-51,1 m²
The one bedroom apartments range from 39,4 - 51,1 m². The apartments are divided into entry, a common area with a kitchen, bathroom and a bedroom. Most of the apartments are closed with a sliding door. Storage space is in closets within the apartment and in the basement. The bedroom has a wardrobe. The apartments on the ground floor have their separate outside area and the apartments on the upper floors all have a balcony.
The drawings are provided with reservations for potential changes during the construction period.
Two bedroom apartments
- Number of bedrooms: 2
- Size of apartments: 56,1-73,1 m²
The two-bedroom apartments range from 56,1 - 73,1 m². The apartments have two bedrooms, a living room with a kitchen and bathroom. Storage space is in closets within the apartment and in the basement. The master bedroom has a wardrobe. The apartments on the ground floor have their separate outside area and the apartments on the upper floors all have a balcony.
The drawings are provided with reservations for potential changes during the construction period.
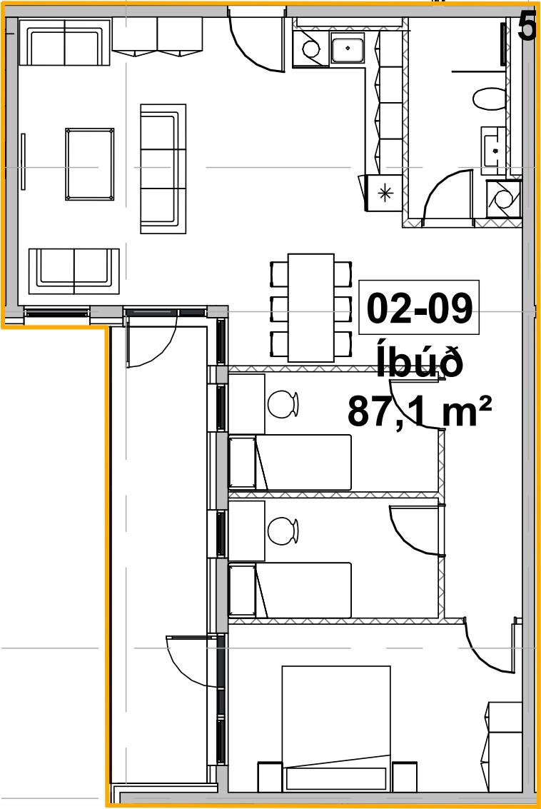
Three bedroom apartments
- Number of bedrooms: 3
- Size of apartments: 75,6-95,6 m²
The three-bedroom apartments range from 75,6 - 95,6 m². The apartments have three bedrooms, a living room with a kitchen and bathroom. Storage space is in closets within the apartment and in the basement. The master bedroom has a wardrobe. The apartments on the ground floor have their separate outside area and the apartments on the upper floors all have a balcony.
The drawings are provided with reservations for potential changes during the construction period.
Four bedroom apartments
- Number of bedrooms: 4
- Size of apartments: 91,4-98,7 m²
The four-bedroom apartments range from 91,4 - 98,7 m². The apartments have four bedrooms, a living room with a kitchen and bathroom. Storage space is in closets within the apartment and in the basement. The master bedroom has a wardrobe. The apartments on the ground floor have their separate outside area and the apartments on the upper floors all have a balcony.
The drawings are provided with reservations for potential changes during the construction period.
Five bedroom apartment
- Number of bedrooms: 5
- Size of apartments: 125,1 m²
There is one five bedroom apartment in Haukahlíð. The apartment is 125,1 m² and is on the top floor. There are two balconies in the apartment and they face both south and north. The apartment is divided into entrance, five bedrooms, a common area with a kitchen and bathroom. Storage space is in closets within the apartment and in the basement. The master bedroom has a wardrobe.
The drawings are provided with reservations for potential changes during the construction period.
Layout
The location is close to the outdoor areas Öskjuhlíð and Nauthólsvík, within walking distance of the universities, and Landspítali University Hospital. Sports facilities are within the Hlíðarendi area.
More information can be found here.
Please note that the 3D renderings are provided for illustrative purposes only. They are intended to give an impression of the design and layout. The final appearance, choice of materials, colors, and finishes may be subject to change during the construction period.