Urðarbrunnur in Reykjavík

Studio apartments

  • Number of bedrooms: 1
  • Size of apartments: 46,1m² - 49,1m²
  • Number of apartments: 11

The studio apartments in Urðarbrunnur are 46,1 - 49,1m² and are divided into a living room with a kitchen, a sleeping area, and a bathroom. Storage space is in closets within the apartment and the apartment has a wardrobe.

One bedroom apartments

  • Number of bedrooms: 1
  • Size of apartments: 37m²- 49m²
  • Number of apartments: 21

The one bedroom apartments are 36,6 - 48,3 m² and are divided into one bedroom, a bathroom, and a living room with kitchen. Storage space is in closets inside the apartment and a wardrobe is in the bedroom.

Here are 360° photos of a typical one bedroom apartment in Urðarbrunnur.

Two bedroom apartments

  • Number of bedrooms: 2
  • Size of apartments: U.þ.b. 57m²-74m²
  • Number of apartments: 19

The two bedroom apartments are 56,8 - 74,3 m² and are divided into two bedrooms, a bathroom, and a living room with a kitchen. Storage space is in closets inside the apartment and a wardrobe is in the master bedroom.

Here is a video of a typical two bedroom apartment taken in in Urðarbrunnur 130 (68,2 m²)

Here are 360° photos typical two bedroom apartment taken in Urðarbrunnur 130 (68,2 m²)

Three bedroom apartments

  • Number of bedrooms: 3
  • Size of apartments: U.þ.b. 84,8m²-95m²
  • Number of apartments: 22

The three bedroom apartments are 82,7 - 95,6 m² and are divided into three bedrooms, a bathroom, and a living room with a kitchen. Storage space is in closets inside the apartment and a wardrobe is in the master bedroom.

Videos:

Here is a video taken in Urðrbrunnur 132 (no. 110, 95,3 m²)

Here is a video taken in Urðrbrunnur 130 (no. 404, 89,9 m²)

Here is a video taken in Urðrbrunnur 33 (no. 403, 82,7 m² )

360° photos:

Here are 360° photos in Urðarbrunnur 132 (no. 110, 95,3 m²)

Here are 360° photos in Urðarbrunnur 130 (no. 404, 89,9 m²)

Here are 360° photos in Urðarbrunnur 132 (no. 403, 82,7 m²)

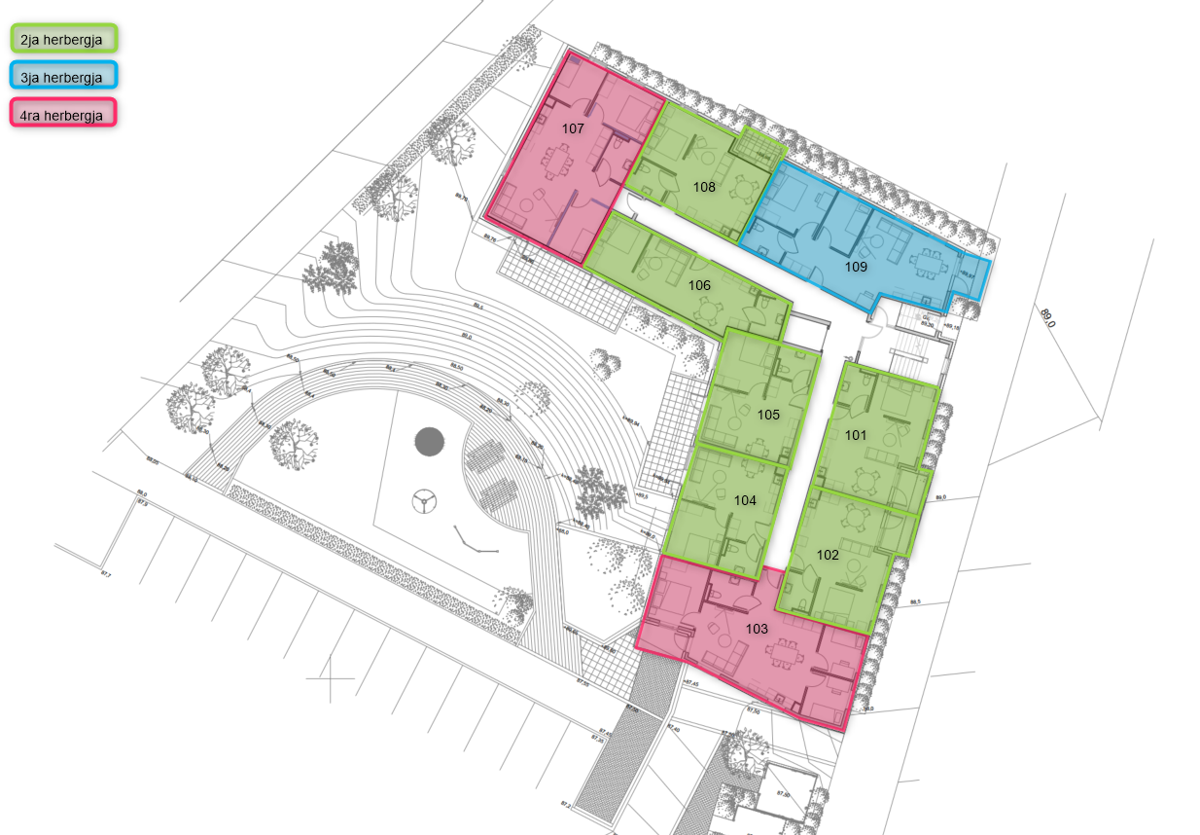
Four bedroom apartments

  • Number of bedrooms: 4
  • Size of apartments: U.þ.b. 113 m²
  • Number of apartments: 4

The four bedroom apartments are approx. 113 m² and are divided into four bedrooms, a bathroom, and a living room with a kitchen. Storage space is in closets inside the apartment and a wardrobe is in the master bedroom.

Here are 360° photos taken in Urðarbrunnur.

 

Layout

All drawings are provided with reservations about any changes that may have occurred during the construction period.

Here you can find the layout for Urðarbrunnur 130-132 and Urðarbrunnur 33.

Environment

One of the characteristics of the area is closeness to nature, and within walking distance are natural gems such as Úlfarsfell, Reynisvatn, and Hólmsheiði. In the neighborhood, there are three pre-schools and two elementary schools, and the multi-sport club Fram.