
Tangabryggja 5 in Reykjavík
98 apartments in Tangabryggja 5 in Bryggjuhverfi, in Reykjavík.
Bjarg's houses in Tangabryggja 5 are called: Tangabryggja 5 og 7, Gjúkabryggja 2, 4 og 6 og Beimabryggja 40.
Pets are allowed in some of the apartments, see the rules for applying for and apartment allowing pets here.
Félagsbústaðir owns and rents out part of the apartments in Tangabryggja.
Here you can see videos and 360° pictures from the apartments in Tangabryggja.
Here you can see Tangabryggja 5 on a map.
One bedroom apartments
- Number of bedrooms: 1
- Size of apartments: 43-55 m²
- Number of apartments: 40
The one-bedroom apartments in Tangabryggja 5 are 43 - 55 m². The apartments have one bedroom, a living room with a kitchen and a bathroom. Storage space is in closets within the apartment and in closets on the ground floor. The bedroom has a wardrobe.
Videos:
Here is a video taken Tangabryggja 5 (no. 304, 43,1 m²)
Here is a video taken Tangabryggja 5 (no. 307, 48,6 m²)
360° photos:
Here are 360° photos taken in Tangabryggja 5 (no. 304, 43,1 m²)
Here are 360° photos taken in Tangabryggja 5 (no. 307, 48,6 m²)
Here you can see more videos and 360° pictures from one bedroom apartments in Tangabryggja 5.
Two bedroom apartments
- Number of bedrooms: 2
- Size of apartments: 61,8-72,4m²
- Number of apartments: 30
The two-bedroom apartments in Tangabryggja 5 are 61,8 - 72,4m². The apartments have two bedrooms, a living room with a kitchen and a bathroom. Storage space is in closets within the apartment and in closets on the ground floor. The master bedroom has a wardrobe.
Videos:
Here is a video taken in Tangabryggja 5 (no. 303, 69,4 m²)
Here is a video taken in Tangabryggja 5 (no. 305, 61,8 m²)
360° photos:
Here are 360° photos taken in Tangabryggja 5 (no. 303, 69,4 m²)
Here are 360° photos taken in Tangabryggja 5 (no. 305, 61,8 m²)
Here you can see more videos and 360° pictures from two bedroom apartments in Tangabryggja 5.
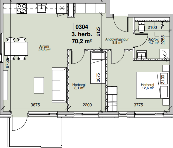
Three bedroom apartments
- Number of bedrooms: 3
- Size of apartments: 83,3-91,7m²
- Number of apartments: 23
The three-bedroom apartments in Tangabryggja 5 are 83,3 - 91,7m². The apartments have three bedrooms, a living room with a kitchen and a bathroom. Storage space is in closets within the apartment and in closets on the ground floor. The master bedroom has a wardrobe.
Videos:
Here is a video taken in Tangabryggja 5 (no. 306, 91,7 m²)
Here is a video taken in Tangabryggja 7 (no. 305, 84,2 m²)
Here is a video taken in Tangabryggja 7 (no. 306, 84,2 m²)
360° photos:
Here are 360° photos taken in Tangabryggja 5 (no. 306, 91,7 m²)
Here are 360° photos taken in Tangabryggja 7 (no. 305, 84,2 m²)
Here are 360° photos taken in Tangabryggja 7 (no. 306, 84,2 m²)
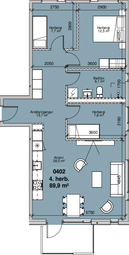
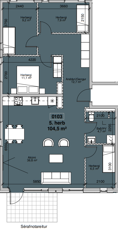
Four bedroom apartments
- Number of bedrooms: 4
- Size of apartments: 105,2-107,8 m²
- Number of apartments: 5
The four-bedroom apartments in Tangabryggja 5 are 105,2 - 107,8 m². The apartments have three bedrooms, a living room with a kitchen and a bathroom. Storage space is in closets within the apartment and in closets on the ground floor. The master-bedroom has a wardrobe.
Videos:
Here is a video taken in in Gjúkbryggja 4 (no. 103, 105,3 m²)
Here is a video taken in Gjúkbryggja 2 (no. 201, 107,7 m²)
360° photos:
Here are 360° photos taken in Gjúkabryggja 4 (no. 103, 105,3 m²)
Here are 360° photos taken in Gjúkabryggja 2 (no. 201, 107,7 m²)
Location, layout and 3d pictures
- Aðaluppdrættir, Tangabryggja 5, matshluti 1
- Aðaluppdrættir, Tangabryggja 5, matshluti 2
- Aðaluppdrættir, Tangabryggja 5, matshluti 4
- Aðaluppdrættir, Gjúkabryggja 5, matshluti 5
- Aðaluppdrættir, Tangabryggja 5, matshluti 6
This new district is one of the city's most ambitious development projects. Focusing on sustainability for most services. Three new elementary schools are to be built as well as several kindergartens. Shopping and services surrounding Bryggjutorg, creating a central point within the neighborhood. Focus also set on good public transport with the Borgarlína passing through the area with a stop at Krossmýrartorg, which is one of Borgarlínan's main stops.
One important aspect of the neighborhood is access to the sea and the beach. The neighborhood offers unique access to outdoor activities along shores, sands, and piers. The whole area is considered sheltered from the wind and there are good walking and cycling routes close to the area, for example to Geirsnef and Elliðaárdalur. Emphasis is placed on planting trees and the whole neighborhood will have a green appearance. There will be a swimming pool in the neighborhood.
"The green city by the bay". Tangabryggja is a part of a new building area in Reykjavík called Elliðaárvogur. The location of the area is unique. The coastline on one hand and the green outdoor recreation area of Elliðarárdalur on the other make the area very special. The new city line (Borgarlínan) will connect the area directly to the city center. An elementary school will be built in the neighborhood and a swimming pool.
Introduction to the development area, from Reykjavík's website
New and green parts of the city in the making
All drawings are provided with reservations about any changes that may have occurred during the construction period.