
Safamýri 58-68 in Reykjavík - NEW
36 rental apartments in Safamýri 58-68 (by Háleitisbraut), 108 Reykjavík.
Constructions started in October 9th 2024 and the apartments are expected to be ready for rent in June 2026. The project is estimated to be fully accomplished in July 2026. Applications are open. See more information about the allocation here.
Pets are allowed in specific apartments on the ground floor in this house. Please note that only four apartments allow a pet, 2 one bedroom and 2 two bedroom apartments. See rules of keeping a pet in Bjarg's apartments here.
Félagsbústaðir owns and will rent out part of the apartments in Safamýri.
Here you can see the location.
Contractor: Ístak hf.
Architect: A2F and Gríma arkitektar
Electricity design: Kriston
Engineer design: Ferill
Plot design: Landmótun
One bedroom apartments
- Number of bedrooms: 1
- Size of apartments: 49,0-56,2 m²
- Number of apartments: 15
The one-bedroom apartments range from 49,0 - 56,2 m² and have a sleeping area that is closed with a sliding door. The apartments are divided into entry, a common area with a kitchen, and a bathroom. Small storage space is in a designated storage area in the building and the apartment has a wardrobe. The apartments on the ground floor have their separate outside area and the apartment on the upper floors all have a balcony.
Here you can see a video taken in a similar one-bedroom apartment in Nónhamar 5 (no. 404, 49,3 m²)
Here you can see 360° pictures taken in a similar a one-bedroom apartment in Nónhamar 5 (no. 404, 49,3 m²)
The drawings are provided with reservations for potential changes during the construction period.
Two bedroom apartments
- Number of bedrooms: 2
- Size of apartments: 71,2 - 81,0 m²
- Number of apartments: 13
The two-bedroom apartments are 71,2 - 81,0 m². They are divided into an entry, two bedrooms, a living room/kitchen and a bathroom. Small storage space is in a designated storage area in the building. A wardrobe is in the master bedroom. The apartments on the ground floor have their separate outside area and the apartment on the upper floors all have a balcony.
The drawings are provided with reservations for potential changes during the construction period.
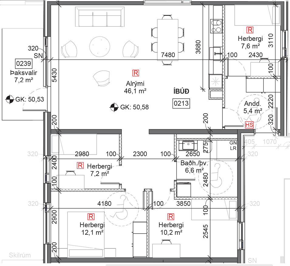
Three bedroom apartments
- Number of bedrooms: 3
- Size of apartments: 93,9 - 97,2 m²
- Number of apartments: 6
The three-bedroom apartments are 93,9 - 97,2 m². They are divided into an entry, three bedrooms, a living room/kitchen and a bathroom. Storage space is in a designated storage area in the building. A wardrobe is in the master bedroom. The apartments on the ground floor have their separate outside area and the apartment on the upper floors all have a balcony.
The drawings are provided with reservations for potential changes during the construction period.
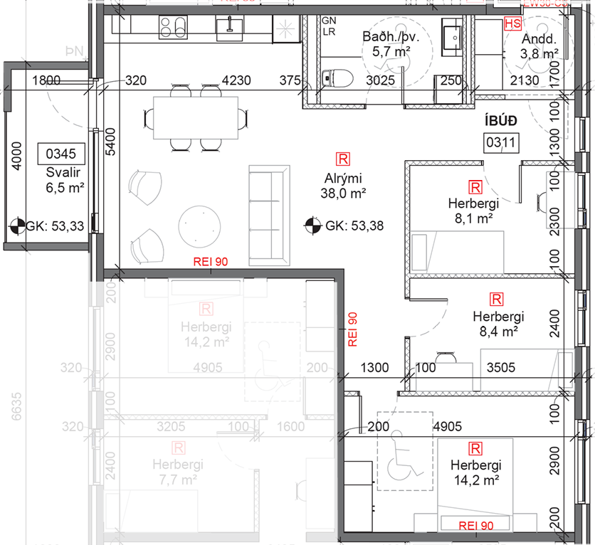
Four bedroom apartments
- Number of bedrooms: 4
- Size of apartments: 116,4 m²
- Number of apartments: 2
The four-bedroom apartments are 116,4 m². They are divided into an entry, four bedrooms, a living room/kitchen and a bathroom. Small storage space is in a designated storage area in the building. A wardrobe is in the master bedroom. The apartments on the ground floor have their separate outside area and the apartment on the upper floors all have a balcony.
The drawings are provided with reservations for potential changes during the construction period.
Layout
Please note that the 3D renderings are provided for illustrative purposes only. They are intended to give an impression of the design and layout. The final appearance, choice of materials, colors, and finishes may be subject to change during the construction period.
The apartments in Safamýri will have one and up to four bedrooms in two 4-story apartment high buildings. The location is considered good in terms of transport, services and connections to schools and kindergartens. Pets will be allowed in some of the apartments.