Maríugata 5 in Garðabær

One bedroom apartment

  • Number of bedrooms: 1
  • Size of apartments: 52,2-53,1 m²
  • Number of apartments: 5

The one-bedroom apartments are 52,2-53,1 m². The apartments have one bedroom, a living room with a kitchen and a bathroom. Storage space is in closets within the apartment. There is a wardrobe in the bedroom.

Here is a video taken in Maríugata 5 (no. 103, 53,1 m²) 

Here are 360° photos taken in Maríugata 5 (no. 103, 53,1 m²)

Two bedroom apartment

  • Number of bedrooms: 2
  • Size of apartments: 75 m² - 77,1 m²
  • Number of apartments: 10

The two-bedroom apartments are 75 m² - 77,1 m². The apartments have two bedrooms, a living room with a kitchen and a bathroom. Storage space is in closets on the ground floor. There is a wardrobe in the master bedroom.

Here is a video taken in Maríugata 5 (no. 102, 76,2 m²)

Here are 360° photos taken in Maríugata 5 (no. 102, 76,2 m²)

Three bedroom apartment

  • Number of bedrooms: 3
  • Size of apartments: 96,7-96,8 m²
  • Number of apartments: 4

The three-bedroom apartments are 96,7-96,8 m². The apartments have three bedrooms, a living room with a kitchen and a bathroom. Storage space is in closets within the apartment. There is a wardrobe in the master bedroom.

Here is a video taken in Maríugata 5 (no. 101, 96,8 m²)

Here are 360° photos taken in Maríugata 5 (no. 101, 96,8 m²)

Four bedroom apartment

  • Number of bedrooms: 4
  • Size of apartments: 99,3 m²
  • Number of apartments: 3

The four-bedroom apartments are 99,3 m². The apartments have four bedrooms, a living room with a kitchen and a bathroom. Storage space is in closets on the ground floor. There is a wardrobe in the master bedroom.

Here is a video taken in Maríugata 5 (no. 205)

Here are 360° photos taken in Maríugata 5 (no. 205)

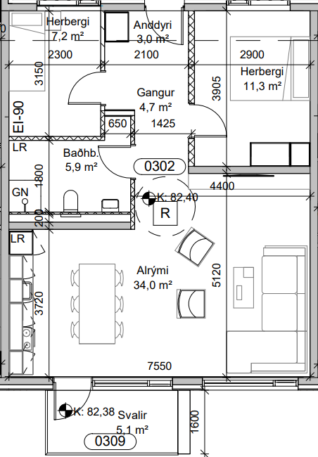
Layout

Urriðaholt is within close distance of many of the main outdoor recreation areas surrounding the capital area, untouched nature and good transport that shorten routes in all directions. See more about Urriðaholt

All drawings are provided with reservations about any changes that may have occurred during the construction period.