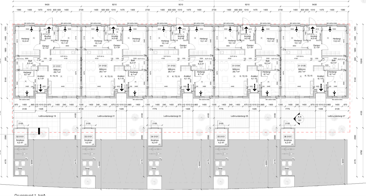
Five three bedroom apartments in Loðmundartangi in Flúðir (postal code 845). Constructions started June 18th 2025 and the apartments are expected to be ready for rent in June 2026. All apartments have been allocated.
All apartments in Flúðir have three bedrooms, a small garden and two parking spaces. Pets are allowed in the apartments. See Bjarg's rules on holding pets.
Here you can find the location of the house.
The apartments range from 93,4 - 95,6 m² and are divided into entry, three bedrooms, a bathroom, a laundry/storage room, and a common area with a kitchen.
The master bedroom has a wardrobe and there are storage cabinets in the laundry room and cabinets in the entry.
-Wooded deck with privacy walls are between apartments, connecting the shed and the house (at the front).
-Each apartment has two parking spaces.
-Each apartment has a outdoor bicycle storage as well as an outdoor storage (unheated).
-A small privacy wall is located between the units at the back of the house.
-The back of the house is accessible through the laundry room/storage space.
-The house will be constructed with precast units with a black stone finish.
-The apartments will have underfloor heating.
Videos
Here you can find a video taken within a similar 3-bedroom apartment in Langahraun 46 (93,6 m²).
Here you can find a video taken within a similar 3-bedroom apartment in Langahrauni 40 (92,2 m²).
360° pictures
Here you can find 360° pictures from a similar 3-bedroom apartment in Langahraun 46 (93,6 m²).
Here you can find 360° pictures from a similar 3-bedroom apartment in Langahrauni 40 (92,2 m²).
The drawings are provided with reservations for potential changes during the construction period.
Please note that all 3D images are of a similar house/not actual images of the houses in Flúðir. The houses in Loðmundartangi in Flúðir will have a slightly different layout than the images show.
Various links where useful information can be found.
Send e-mail